Recortearquivos PDF importados
|
Comando |
Caminho |
|
Editar Recorte |
Modificar Menu contextual |
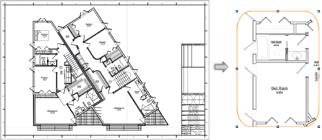
As páginas PDF importadas e referenciadas podem ser cortadas de forma que apenas parte da página PDF fique visível.
Para cortar um PDF importado ou referenciado:
Selecione o objeto Página PDF.
Selecione o comando ou clique duas vezes no objeto Página PDF.
O modo de edição de objetos é aberto. Se o objeto PDF estiver em um plano 3D, a vista girará de forma que o plano 3D fique paralelo ao plano da tela.
Crie uma forma 2D como um retângulo, círculo ou polilinha para definir uma área; por exemplo. Posicione o objeto 2D para delimitar a nova área de exibição do PDF. O preenchimento do objeto de corte de viewport é sempre Nenhum; entretanto, o estilo da caneta pode ser definido na paleta Atributos enquanto estiver no modo Editar corte.
CliqueSair do recorte da página PDF para voltar ao desenho.
O PDF recortado é exibido; na Paleta de Info de Objeto, o status Cortar muda para Sim.
Para alterar, substituir ou excluir o objeto de corte, selecione o objeto da página PDF e, a seguir, selecione o comando novamente para entrar novamente no modo Editar corte.
Para alterar a visibilidade do objeto cortado, altere o Corte visível configuração na paleta Info de Objeto.
